lexiconelevatorss@gmail.com +919854475426, +919678234649

Gearless Machine for MRL Elevators

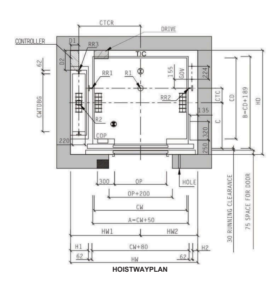
In Machine-Room-Less (MRL) elevators, there is no separate machine room above or below the shaft. Instead, the elevator’s hoisting machine is installed within the shaft itself, usually at the top or side. The gearless machine used here is a compact, high-efficiency traction motor (often Permanent Magnet Synchronous Motor – PMSM) that directly drives the traction sheave without using a gearbox.

Gearless Machine for MRL Elevators
Gearless Machine for MRL Elevators
  • Room less Passenger Elevator take less space, which enables you t o effectively utilize the construction space.
  • Ideal product for shop, office & residential application.
  • Itreduces construction time, materials and costs.
  • More energy saving & smoother systems.
  • Maintenance is via a panel located at floor level.
Gearless Machine for MRL Elevators
Gearless Machine for MRL Elevators
Gearless Machine for MRL Elevators
Gearless Machine for MRL Elevators
\
Connect to Us for More Information